Precast Concrete Detailing
Accurate Precast Panel Shop Drawings for Fabrication & Construction.
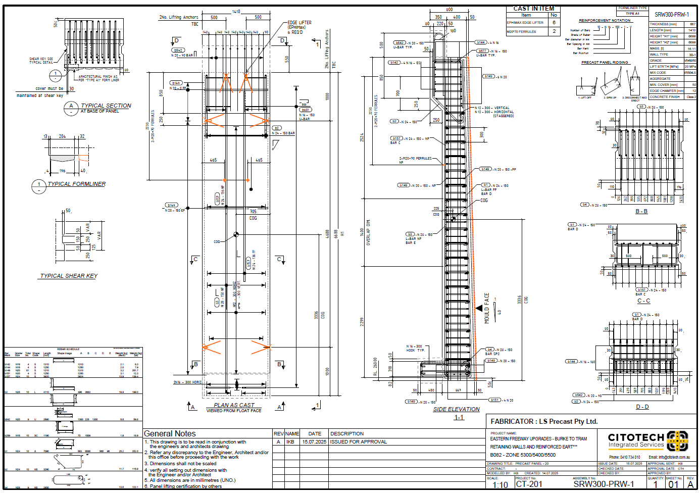
Citotech Integrated Services enhances structural outcomes with expert tilt-up and precast concrete panel detailing, delivering accurate shop drawings, reinforcement layouts, lifting and bracing plans, and panel layouts tailored to your project’s exact requirements. We also provide specialised rebar detailing services that reinforce success offering clarity, compliance, and coordination to ensure every foundation is built right from the very first bend. Our build-ready documentation supports efficient manufacturing, safe lifting and transport, and smooth on-site erection, helping minimise delays and ensuring full compliance with New Zealand building standards.
What We Deliver:
Importance of Precast Concrete Detailing in Construction Projects
We produce fully coordinated detailing packages for precast concrete elements, including:
• General Arrangement Drawings (Marking Plans)
• Precast Panel Layouts & Elevations
• Cast-In Plate & Ferrule Placement
• Lifting & Bracing Point Design
• Panel Joint & Connection Details
• Material Take-Off Reports
• Custom Transmittals & Embed Schedules
Whether you’re delivering tilt-up panels, wall systems, columns, floors, or stairs, we’ve got you covered.
Why Citotech?
• Dedicated Project Manager
One point of contact from start to finish. Weekly reports, faster decisions, and better outcomes.
• New Zealand-Based Team
All work is completed locally, ensuring fast communication and compliance with national codes and standards.
• Build-Ready Accuracy
Our drawings are ready for manufacturing, transport, and on-site erection. No guesswork. No delays.
• Trusted by Builders & Engineers
From large-scale warehouses to architectural facades, we’re the backbone of hundreds of successful construction projects.
What Makes Our Shop Drawings Different?
• Tailored to your architectural & engineering intent.
• Delivered in builder-ready formats.
• Easily updated for fast turnaround on revisions.
• Commercial & Industrial Construction.
• Residential Developments.
• Precast Panel Manufacturing.
• Government & Infrastructure Projects.
• Engineering Consultancies.
Know More About Our Precast Concrete Shop Drawings Solutions:
Precast General Arrangement (GA) Drawings
Clear layout drawings showing element positioning, alignment, and connection details.Precast Shop Drawings
Comprehensive fabrication drawings prepared for efficient production of precast elements.Precast Reinforcement Detailing
Detailed reinforcement layouts ensuring strength, durability, and structural integrity.Precast Lifting & Handling Details
Safe lifting, transportation, and installation guidelines for each precast component.
Precast Connection Details
Accurate joint and anchorage specifications to guarantee reliable structural performance.Precast Bill of Materials (BOM)
Complete material take-offs for production planning and cost efficiency.Precast Embedment Detailing
Precise positioning and design of embedded items such as anchors, plates, and inserts.Precast Panel Detailing
Dimensional drawings for wall, cladding, and floor panels, tailored for smooth installationPrecast Column & Beam Detailing
Shop drawings for vertical and horizontal load-bearing elements with reinforcement details.Precast Staircase & Balcony Detailing
Accurate detailing for stair flights, landings, and balcony units to ensure safety and compliance.Precast Foundation Details
Base element drawings with connection specifications for secure structural support.
Precast Retaining Wall Detailing
Design and detailing of retaining walls for stability and long-term performance.Precast Bridge Element Detailing
Precision drawings for precast bridge girders, decks, and related components.Precast Tank & Utility Structure Detailing
Detailed drawings for underground tanks, pits, and other utility structures.Precast Pavement & Barrier Detailing
Precast elements for pavements, kerbs, medians, and traffic barriers.Precast Coordination & Clash Detection
Advanced BIM coordination to detect conflicts early and ensure seamless integration.Precast Double Tee Detailing
Load-bearing double tee slab detailing for long-span structural applications.- Precast Hollow Core Slab Detailing
Layouts and reinforcement for hollow core slabs, optimised for strength and efficiency.










